246 m² lyse lokaler i Svendborg centrum - mulighed for opdeling, kontorfællesskab m.v.
Lyse og præsentable 1. sals lokaler med rustik indretning, særdeles velegnede til undervisning, kontor, klinik, tegnestue mv. Beliggende i Svendborg centrum i roligt miljø, få minutter fra banegården og tæt på flere offentlige p-pladser. Evt. mulighed for leje af p-plads ved lejemålet.
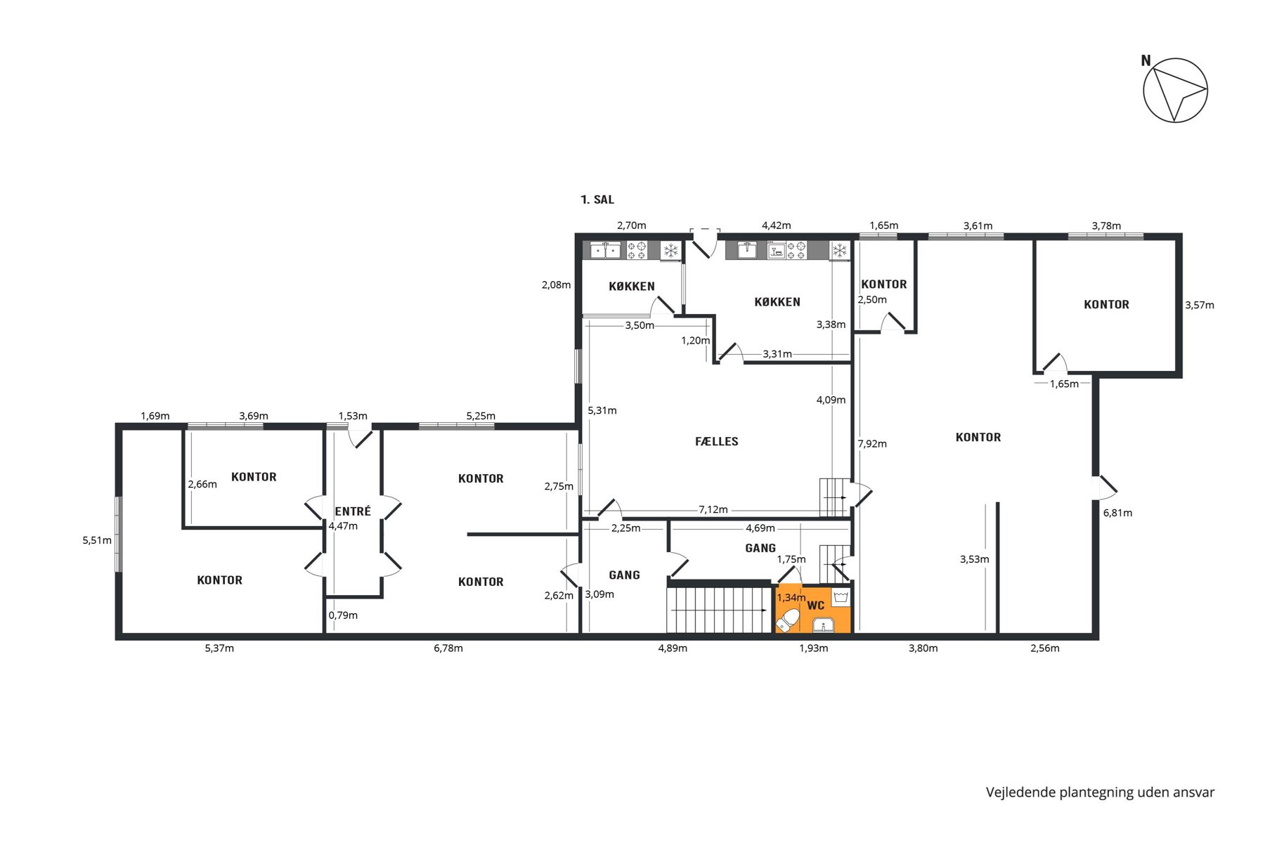
Lejemålet består af tre store regulære rum, køkkenfaciliteter og toilet. Der er trægulve eller tæppebelægning samt hvide vægge og lofter overalt. Gode adgangsforhold ad såvel indvendig som udvendig trappe.
Inventaret tilhører nuværende lejer og medfølger ikke.
Mulighed for hurtig overtagelse!
Lejemålet består af tre store regulære rum, køkkenfaciliteter og toilet. Der er trægulve eller tæppebelægning samt hvide vægge og lofter overalt. Gode adgangsforhold ad såvel indvendig som udvendig trappe.
Inventaret tilhører nuværende lejer og medfølger ikke.
Mulighed for hurtig overtagelse!