Klassisk villa med mulighed for fritidsbolig på Sydlangeland
Drømmer du om en charmerende villa eller et fritidshus i rolige, naturskønne omgivelser og samtidig med kort afstand til indkøb og strand? Så er denne fine, klassiske villa i Nordenbro et oplagt valg.
Ejendommen ligger let tilbagetrukket fra Landevejen i det hyggelige lokalsamfund Nordenbro, cirka fem minutters kørsel fra Humble. Allerede på afstand fornemmer man husets særlige karakter. Den hvidpudsede facade med frise og smukke detaljer omkring vinduerne vidner om husets historie, der går tilbage til år 1900. Her får du en ejendom med både sjæl og atmosfære.
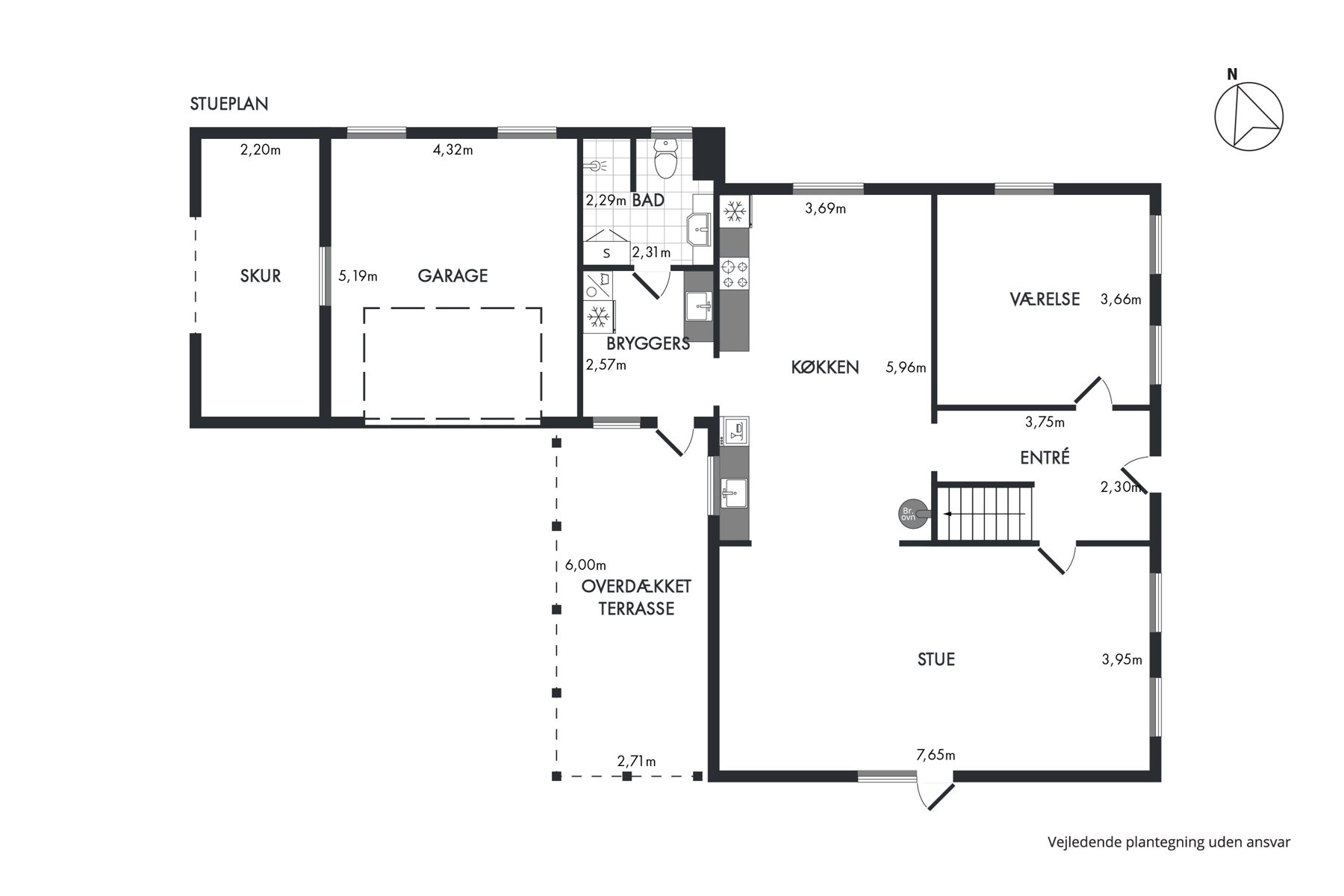
Boligen rummer tre gode og rummelige værelser, et stort spisekøkken i åben forbindelse med stuen samt integreret garage og udhus. Planløsningen gør huset ideelt til både familieliv og afslappende ferier med plads til gæster. I køkkenet er der god plads til et stort spisebord, og brændeovnen skaber den helt rette stemning på kølige aftener. Stuen er lys og indbydende og har udgang til en overdækket, sydvendt terrasse – perfekt til lange sommeraftener.
Stueplan byder desuden på et værelse, badeværelse og bryggers, mens førstesalen rummer en stor repos, to værelser samt et mindre uudnyttet loftsrum med muligheder.
Grunden er på 924 m² og vender mod sydvest, så her er gode solforhold dagen igennem. Haven er anlagt med stor køkkenhave og drivhus – oplagt til dig, der drømmer om hjemmedyrkede grøntsager og et grønt fristed i ferierne. Ejendommen har tidligere huset både skomager og frisør, og senest har der været salg af grøntsager og brænde fra adressen – et fint vidnesbyrd om stedets aktive historie.
Beliggenheden er fredelig og naturskøn midt mellem Humble og Bagenkop. I Humble finder du dagligvarebutikker, apotek, skole og sportshal, og inden for blot 10 minutters kørsel når du de skønne strande og den populære sommerstemning ved Ristinge.
Her får du en stemningsfuld og velholdt ejendom med mange anvendelsesmuligheder – uanset om du søger helårsbolig eller et hyggeligt fritidshus på smukke Sydlangeland.
Ejendommen ligger let tilbagetrukket fra Landevejen i det hyggelige lokalsamfund Nordenbro, cirka fem minutters kørsel fra Humble. Allerede på afstand fornemmer man husets særlige karakter. Den hvidpudsede facade med frise og smukke detaljer omkring vinduerne vidner om husets historie, der går tilbage til år 1900. Her får du en ejendom med både sjæl og atmosfære.
Boligen rummer tre gode og rummelige værelser, et stort spisekøkken i åben forbindelse med stuen samt integreret garage og udhus. Planløsningen gør huset ideelt til både familieliv og afslappende ferier med plads til gæster. I køkkenet er der god plads til et stort spisebord, og brændeovnen skaber den helt rette stemning på kølige aftener. Stuen er lys og indbydende og har udgang til en overdækket, sydvendt terrasse – perfekt til lange sommeraftener.
Stueplan byder desuden på et værelse, badeværelse og bryggers, mens førstesalen rummer en stor repos, to værelser samt et mindre uudnyttet loftsrum med muligheder.
Grunden er på 924 m² og vender mod sydvest, så her er gode solforhold dagen igennem. Haven er anlagt med stor køkkenhave og drivhus – oplagt til dig, der drømmer om hjemmedyrkede grøntsager og et grønt fristed i ferierne. Ejendommen har tidligere huset både skomager og frisør, og senest har der været salg af grøntsager og brænde fra adressen – et fint vidnesbyrd om stedets aktive historie.
Beliggenheden er fredelig og naturskøn midt mellem Humble og Bagenkop. I Humble finder du dagligvarebutikker, apotek, skole og sportshal, og inden for blot 10 minutters kørsel når du de skønne strande og den populære sommerstemning ved Ristinge.
Her får du en stemningsfuld og velholdt ejendom med mange anvendelsesmuligheder – uanset om du søger helårsbolig eller et hyggeligt fritidshus på smukke Sydlangeland.