Spændende villa i god stand nær Kobberbækken i Svendborg
Denne hyggelige ejendom ligger nær Kobberbækken og Ørkild Voldsted i Svendborg og samtidig ikke langt fra byens centrum.
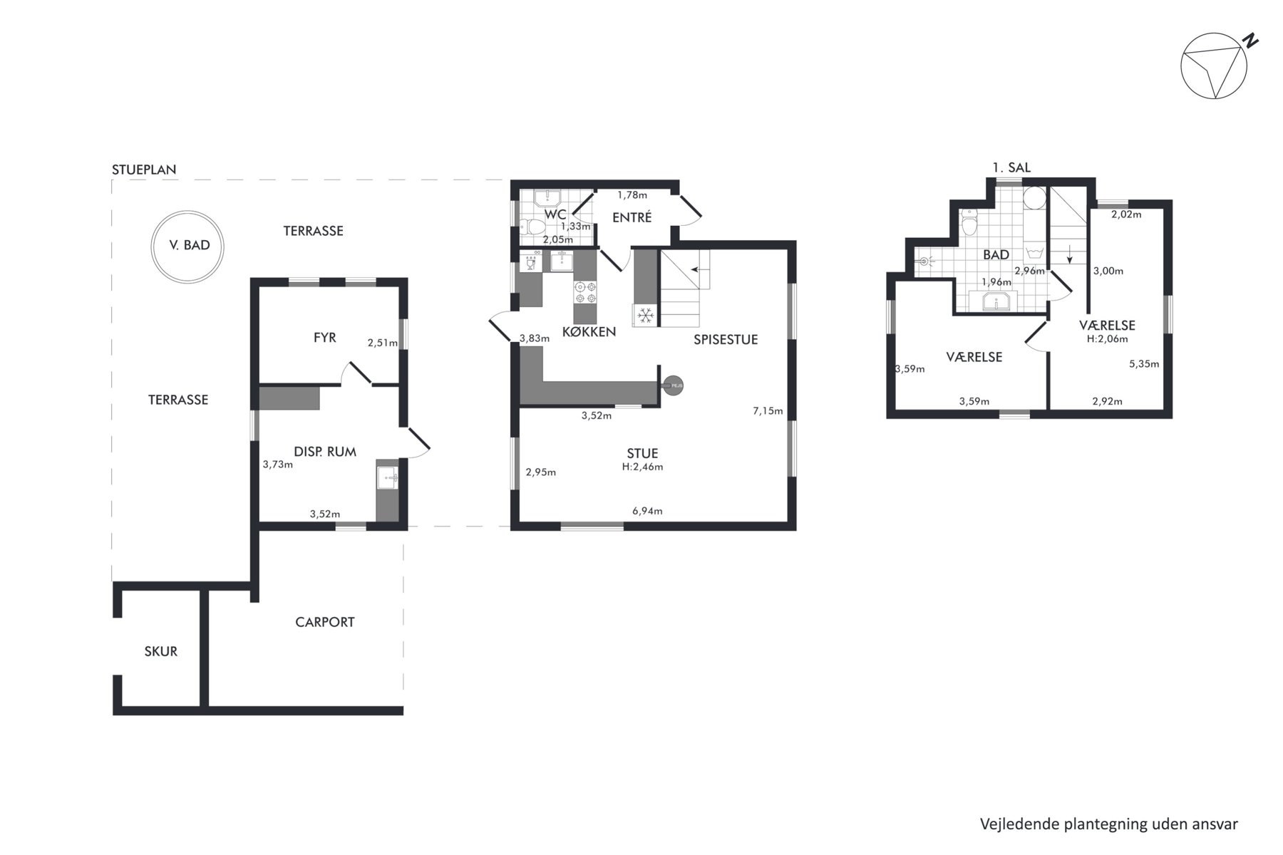
Huset byder på 101 m² bolig over halvandet plan. Hertil kommer et baghus i samme stil som hovedhuset. Det er indrettet med to disponible rum og mellem de to huse er et fint terrasseområde samt en carport.
Ejendommen ligger på en overskuelig grund på 616 m². Bag baghuset ligger haven, der er enkelt anlagt med græs og dertil får I et dejligt vildmarksbad og et drivhus.
Ejendommen har fået et væld af opdateringer inden for de seneste 10 år. Her indgår vigtige energiforbedringer som opsætning af træpillefyr, isolering på loftet både i boligen og baghuset samt isolering af krybekælderen. Nyligst er facade og sokkel på både hovedhus og baghus pudset op og malet.
Ejendommen indeholder i stueetagen en vinkelstue med brændeovn. Stuen ligger i åben forbindelse til køkkenet, der er fint og funktionelt, som det står. Det kunne dog trænge til en opdatering, og faktisk kan I her få et lækkert spisekøkken, hvis I sløjfer væggen midt i rummet. Fra køkkenet er der adgang til krybekælderen, som eventuelt kunne fungere som et praktisk viktualierum. Videre fra køkkenet følger entréen med adgang til et fint gæstetoilet.
Badeværelse er fra 2018 og befinder sig på førstesalen. Det står flot med moderne badeværelsesmøbler og en stor, muret bruseniche samt plads til vaskemaskine og tørretumbler. 1. salen er derudover indrettet med to lyse værelser, der for nylig er istandsat med nye vægge og gulve samt nyt loft i soveværelset.
Huset ligger godt placeret nær natur lidt uden for centrum. Her er nem adgang til Christiansminde Strand med skov og store friarealer og kun fem minutter på cykel til bymidten og havnen. Der venter også mange hyggelige spadsereture rundt i naturområdet ved Kobberbækken, og så er der fine handlemuligheder blot få minutter fra hoveddøren.
Et rigtig spændende og velholdt byhus, der absolut bør ses.
Huset byder på 101 m² bolig over halvandet plan. Hertil kommer et baghus i samme stil som hovedhuset. Det er indrettet med to disponible rum og mellem de to huse er et fint terrasseområde samt en carport.
Ejendommen ligger på en overskuelig grund på 616 m². Bag baghuset ligger haven, der er enkelt anlagt med græs og dertil får I et dejligt vildmarksbad og et drivhus.
Ejendommen har fået et væld af opdateringer inden for de seneste 10 år. Her indgår vigtige energiforbedringer som opsætning af træpillefyr, isolering på loftet både i boligen og baghuset samt isolering af krybekælderen. Nyligst er facade og sokkel på både hovedhus og baghus pudset op og malet.
Ejendommen indeholder i stueetagen en vinkelstue med brændeovn. Stuen ligger i åben forbindelse til køkkenet, der er fint og funktionelt, som det står. Det kunne dog trænge til en opdatering, og faktisk kan I her få et lækkert spisekøkken, hvis I sløjfer væggen midt i rummet. Fra køkkenet er der adgang til krybekælderen, som eventuelt kunne fungere som et praktisk viktualierum. Videre fra køkkenet følger entréen med adgang til et fint gæstetoilet.
Badeværelse er fra 2018 og befinder sig på førstesalen. Det står flot med moderne badeværelsesmøbler og en stor, muret bruseniche samt plads til vaskemaskine og tørretumbler. 1. salen er derudover indrettet med to lyse værelser, der for nylig er istandsat med nye vægge og gulve samt nyt loft i soveværelset.
Huset ligger godt placeret nær natur lidt uden for centrum. Her er nem adgang til Christiansminde Strand med skov og store friarealer og kun fem minutter på cykel til bymidten og havnen. Der venter også mange hyggelige spadsereture rundt i naturområdet ved Kobberbækken, og så er der fine handlemuligheder blot få minutter fra hoveddøren.
Et rigtig spændende og velholdt byhus, der absolut bør ses.