Velholdt sommerhus med fantastisk udsigt over sø og natur
Velkommen til Karpevænget 3, Bukkemose, 5932 Humble – et eksklusivt sommerhus, der kombinerer moderne design og en yderst velholdt atmosfære. Dette pragtfulde sommerhus, opført i 2011, strækker sig over imponerende 110 kvadratmeter fordelt på to niveauer og byder på en enestående kombination af komfort og æstetik.
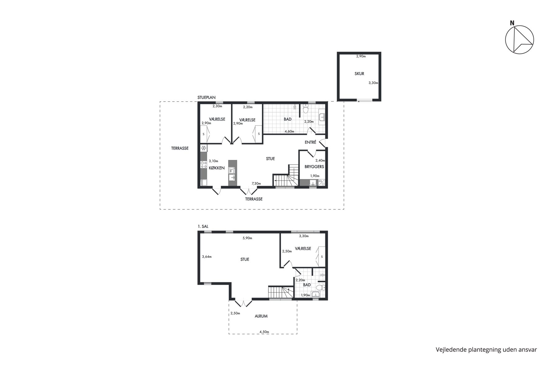
I hjertet af hjemmet finder du et lyst og indbydende køkken-alrum, hvor moderne køkkenfaciliteter møder funktionelt design. Tager man trappen ovenpå, mødes man af en stue, der emmer af afslappet elegance. Med tre smagfuldt indrettede værelser og to luksuriøse badeværelser er der rigeligt med plads til både familie og gæster.
En særlig feature ved dette sommerhus er den store terrasse/altan, tilgængelig fra stuen på øverste niveau. Her kan du nyde udsigten over en malerisk sø og omkringliggende natur, mens du forkæler dig selv med frisk luft og solskin. Dette udendørs rum tilbyder den perfekte ramme for afslappende øjeblikke og sociale sammenkomster.
Interiøret i sommerhuset er præget af stilfulde detaljer og moderne finesser, der skaber en harmonisk atmosfære. Hvert værelse er nøje indrettet for at skabe en følelse af luksus og samtidig opretholde den afslappede charme, som kendetegner et ideelt sommerhus.
Den 619 kvadratmeter store grund, hvor dette sommerhus står, tilbyder ikke kun privatliv, men også en smuk ramme omkring ejendommen. Beliggenheden i Bukkemose, Humble, som er et mindre sommerhusområde på Sydlangeland, giver beboerne mulighed for at fordybe sig i naturen og nyde roen i det omkringliggende miljø. Et fantastisk område for dem der elsker naturen og vandet. Her er ca. 3 minutters gang til stranden og gåafstand til Langelands Golf Klub. Fra stranden er der muligheder for både at fiske og bade, ligesom der er en dejlig legeplads, badebro og slæbested for både.
Dette sommerhus på Karpevænget 3 er en sand perle, der indkapsler det bedste af moderne boligdesign og den idylliske charme, der kendetegner en perfekt sommerhusoplevelse. Grib chancen for at kalde dette sted for dit hjem og oplev en unik kombination af komfort og naturskønhed.
I hjertet af hjemmet finder du et lyst og indbydende køkken-alrum, hvor moderne køkkenfaciliteter møder funktionelt design. Tager man trappen ovenpå, mødes man af en stue, der emmer af afslappet elegance. Med tre smagfuldt indrettede værelser og to luksuriøse badeværelser er der rigeligt med plads til både familie og gæster.
En særlig feature ved dette sommerhus er den store terrasse/altan, tilgængelig fra stuen på øverste niveau. Her kan du nyde udsigten over en malerisk sø og omkringliggende natur, mens du forkæler dig selv med frisk luft og solskin. Dette udendørs rum tilbyder den perfekte ramme for afslappende øjeblikke og sociale sammenkomster.
Interiøret i sommerhuset er præget af stilfulde detaljer og moderne finesser, der skaber en harmonisk atmosfære. Hvert værelse er nøje indrettet for at skabe en følelse af luksus og samtidig opretholde den afslappede charme, som kendetegner et ideelt sommerhus.
Den 619 kvadratmeter store grund, hvor dette sommerhus står, tilbyder ikke kun privatliv, men også en smuk ramme omkring ejendommen. Beliggenheden i Bukkemose, Humble, som er et mindre sommerhusområde på Sydlangeland, giver beboerne mulighed for at fordybe sig i naturen og nyde roen i det omkringliggende miljø. Et fantastisk område for dem der elsker naturen og vandet. Her er ca. 3 minutters gang til stranden og gåafstand til Langelands Golf Klub. Fra stranden er der muligheder for både at fiske og bade, ligesom der er en dejlig legeplads, badebro og slæbested for både.
Dette sommerhus på Karpevænget 3 er en sand perle, der indkapsler det bedste af moderne boligdesign og den idylliske charme, der kendetegner en perfekt sommerhusoplevelse. Grib chancen for at kalde dette sted for dit hjem og oplev en unik kombination af komfort og naturskønhed.