Smuk, velholdt og umådeligt charmerende landejendom gearet til hestehold på Sydfyn
Selv Kim Larsen kunne som bekendt kun spå om et langt og lykkeligt liv, men har man adresse her på Humlebjergvej 24, ligger det gode liv lige for! Her ligger en ejendom af den slags, der næsten virker lidt uvirkelig. En trelænget gård i bindingsværk, der ligger på en vidunderlig naturgrund, der skråner ned mod en sø - som taget ud af en billedbog. Det er en udpræget hesteejendom komplet med hestestald med fire bokse samt to indhegnede folde.
Hele herligheden ligger smukt på toppen af en høj i kuperet terræn i det sydfynske landskab midt imellem tre veletablerede landsbyer, hvor blandt andet den landskendte håndboldklub GOG har hjemme. Der er således nem forbindelse til hverdagens fornødenheder og et flot udvalg af både kommunale skoler, friskoler og efterskoler samt gode pasningsmuligheder. Derudover tager det kun 5 minutter at køre til en af øens flotte sandstrande i charmerende Lundeborg.
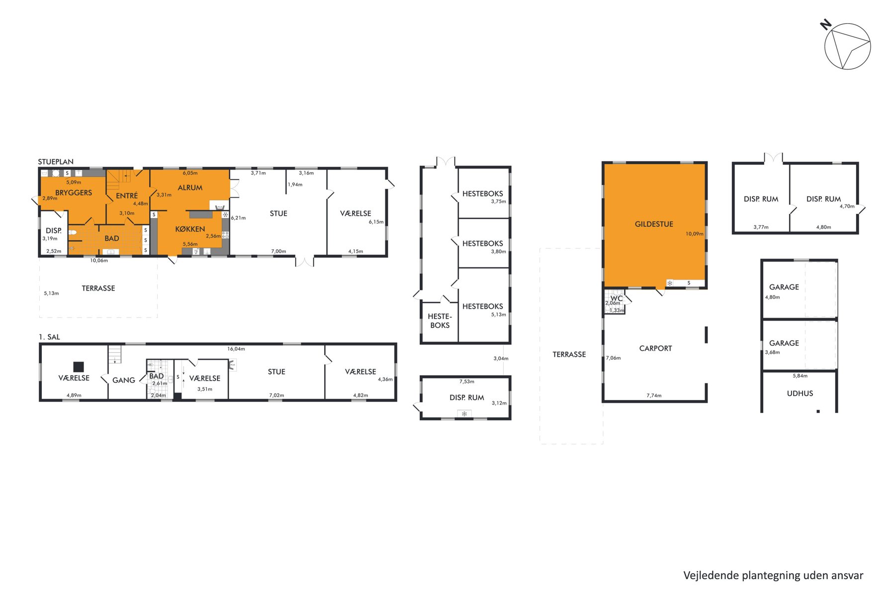
I bliver ejere af en usædvanligt velholdt og gennemført ejendom. Stuehusets 307 boligkvadratmeter sørger for rigelig plads og mange indretningsmuligheder for selv større familier, ligesom ejendommen giver mulighed for liberalt erhverv. Hertil kommer en længe med en stemningsfuld gildesal samt et flot udvalg af udhuse, garager og en stor dobbeltcarport.
Foruden ejendommens generøse volumen og selvsagt mange muligheder, er det ejendommens flotte stand og uimodståelige charme, der springer i øjnene. Det har været nuværende ejeres “darling” siden indflytningen tilbage i 1987. Et livsprojekt med andre ord, og det kan både ses og mærkes, når man bevæger sig rundt i stuehuset, mellem længerne og i den fantastiske have.
Ejendommens tre længer står flotte og homogene med hvide facader tangeret af sort bindingsværk. Gårdspladsen i midten prydes af en hængebirk, som nuværende ejere fik i indflyttergave i 1987.
Stuehuset står flot og indbydende med lyse materialer og en god dosis landlig charme i form af synlige loftsbjælker, sprossevinduer og gulve i enten fliser eller lyse planker. Og i køkken-alrummet er de lodrette egetræsstolper helt tilbage fra husets fødsel omkring år 1800. Derudover er stueplan indrettet med entré, bryggers, et stort badeværelse, stue og et stort soveværelse med egen udgang til haven.
Førstesalen er i samme flotte stand som stueplan og byder på tre værelser, et badeværelse samt endnu en hyggelig stue med loft til kip og brændeovn. Fra den nordøstlige facade er der frit kig til Lohals på Langeland og til Storebæltsbroen.
Og skal der være fest, lægger gildesalen rummelige og hyggelige rammer om arrangementet. Faktisk er det ejendommens gamle svinestald, hvilket kun de klassiske staldvinduer vidner om. Det er et stemningsfuldt rum med loft til kip, synlige bjælker, praktisk klinkegulv med gulvvarme samt adgang til toilet i samme bygning.
Og så er der haven og ikke mindst viewet fra terrassen mod sydøst ned langs den smukke plæne, der skråner ned mod søen med træer til begge sider. Her er ikke et øje tørt, og med Dannebrog blafrende fra flagstangen har Morten Korch bestemt ikke levet forgæves. Området ved søen er særdeles anvendeligt, hvis I vil holde letbenede dyr som får eller geder. Ejendommen er desuden gearet til at holde fire heste og de to folde er praktisk placeret nær hestestalden.
Alt i alt en svært forførende ejendom for jer, der er interesserede i hestehold eller blot vil nyde livet.
Hele herligheden ligger smukt på toppen af en høj i kuperet terræn i det sydfynske landskab midt imellem tre veletablerede landsbyer, hvor blandt andet den landskendte håndboldklub GOG har hjemme. Der er således nem forbindelse til hverdagens fornødenheder og et flot udvalg af både kommunale skoler, friskoler og efterskoler samt gode pasningsmuligheder. Derudover tager det kun 5 minutter at køre til en af øens flotte sandstrande i charmerende Lundeborg.
I bliver ejere af en usædvanligt velholdt og gennemført ejendom. Stuehusets 307 boligkvadratmeter sørger for rigelig plads og mange indretningsmuligheder for selv større familier, ligesom ejendommen giver mulighed for liberalt erhverv. Hertil kommer en længe med en stemningsfuld gildesal samt et flot udvalg af udhuse, garager og en stor dobbeltcarport.
Foruden ejendommens generøse volumen og selvsagt mange muligheder, er det ejendommens flotte stand og uimodståelige charme, der springer i øjnene. Det har været nuværende ejeres “darling” siden indflytningen tilbage i 1987. Et livsprojekt med andre ord, og det kan både ses og mærkes, når man bevæger sig rundt i stuehuset, mellem længerne og i den fantastiske have.
Ejendommens tre længer står flotte og homogene med hvide facader tangeret af sort bindingsværk. Gårdspladsen i midten prydes af en hængebirk, som nuværende ejere fik i indflyttergave i 1987.
Stuehuset står flot og indbydende med lyse materialer og en god dosis landlig charme i form af synlige loftsbjælker, sprossevinduer og gulve i enten fliser eller lyse planker. Og i køkken-alrummet er de lodrette egetræsstolper helt tilbage fra husets fødsel omkring år 1800. Derudover er stueplan indrettet med entré, bryggers, et stort badeværelse, stue og et stort soveværelse med egen udgang til haven.
Førstesalen er i samme flotte stand som stueplan og byder på tre værelser, et badeværelse samt endnu en hyggelig stue med loft til kip og brændeovn. Fra den nordøstlige facade er der frit kig til Lohals på Langeland og til Storebæltsbroen.
Og skal der være fest, lægger gildesalen rummelige og hyggelige rammer om arrangementet. Faktisk er det ejendommens gamle svinestald, hvilket kun de klassiske staldvinduer vidner om. Det er et stemningsfuldt rum med loft til kip, synlige bjælker, praktisk klinkegulv med gulvvarme samt adgang til toilet i samme bygning.
Og så er der haven og ikke mindst viewet fra terrassen mod sydøst ned langs den smukke plæne, der skråner ned mod søen med træer til begge sider. Her er ikke et øje tørt, og med Dannebrog blafrende fra flagstangen har Morten Korch bestemt ikke levet forgæves. Området ved søen er særdeles anvendeligt, hvis I vil holde letbenede dyr som får eller geder. Ejendommen er desuden gearet til at holde fire heste og de to folde er praktisk placeret nær hestestalden.
Alt i alt en svært forførende ejendom for jer, der er interesserede i hestehold eller blot vil nyde livet.