Velindrettet og moderne erhvervsejendom med mange anvendelsesmuligheder
Da nuværende ejer er vokset ud af ejendommen, udbydes nu denne alsidige og velholdte erhvervsejendom, der rummer optimale rammer for en bred vifte af erhverv.
Ejendommen er opført i 2010 og blev tilbygget i 2019, og fremstår funktionel, tidssvarende og klar til ny ejer. Det samlede bygningsareal udgør 585 m², som er særdeles fornuftigt disponeret.
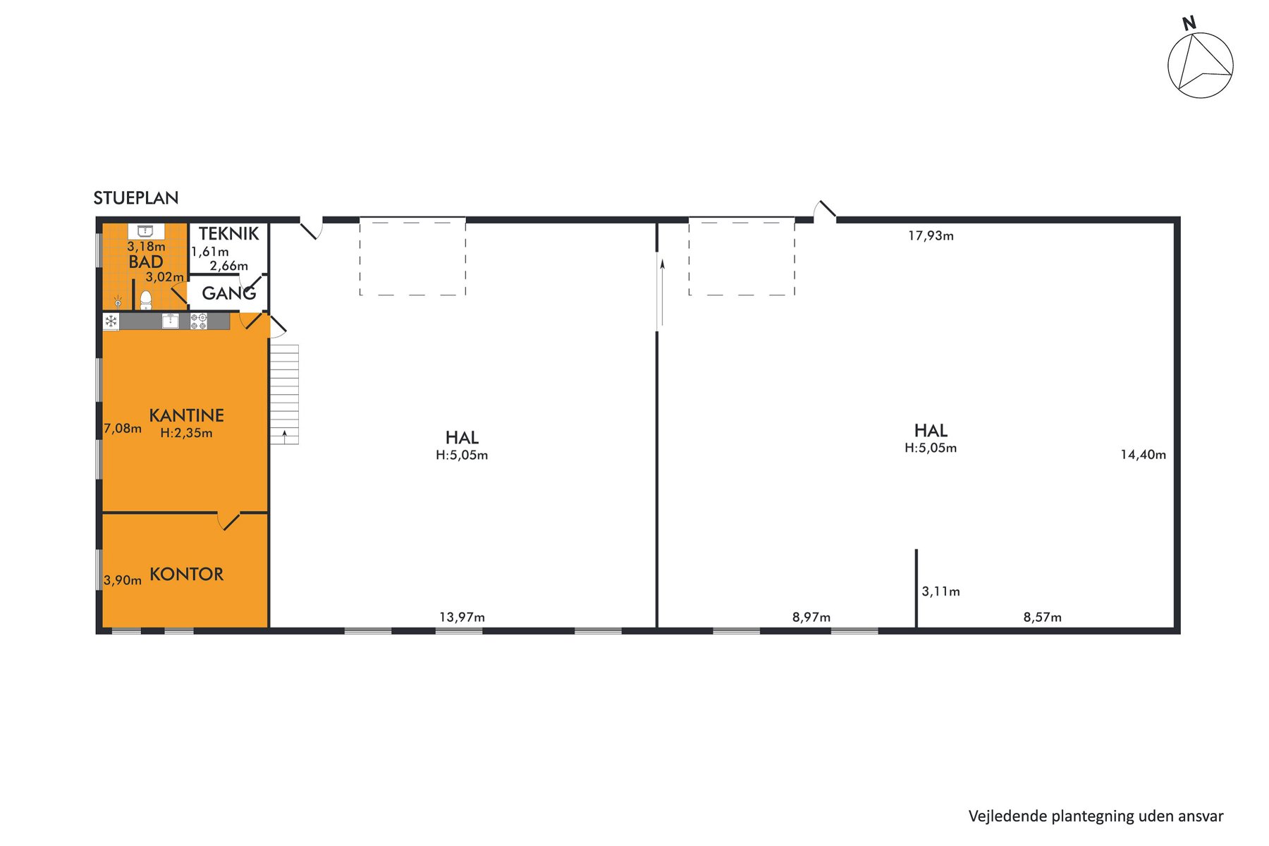
Bygningen indeholder en produktions-/lagerhal opdelt i to separate haller, begge med højt til loftet og hver sin store port, hvilket giver stor fleksibilitet i den daglige drift. Hertil kommer kontor, kantine/personalerum samt badeværelse, alle med gulvvarme, hvilket sikrer god komfort for medarbejdere. Endvidere findes et mindre lager på 1. sal, velegnet til opbevaring af lettere varer eller arkiv.
Indretningen fremgår tydeligt af plantegningen, hvor bl.a. kontor- og personalefaciliteter er samlet i én fløj, adskilt fra halarealerne, hvilket giver en praktisk og effektiv arbejdsdag
Ejendommen er beliggende på en 2.114 m² stor grund, der primært består af flisebelagt parkerings- og manøvreareal samt et grønt areal. Der er gode adgangsforhold for både medarbejdere, kunder og leverancer.
Beliggenheden er attraktiv i udkanten af Gudme med kort køreafstand til både Svendborg, Nyborg og Ringe, hvilket sikrer nem adgang til det fynske vejnet og motorvejsforbindelser.
Ejendommen er velegnet til mange formål, herunder: produktion, håndværk, industri, mekaniker- eller værkstedsdrift, lager og logistik etc.
En fleksibel erhvervsejendom med gode faciliteter og en attraktiv beliggenhed – ideel for virksomheden, der ønsker plads til både drift og vækst.
Ejendommen er opført i 2010 og blev tilbygget i 2019, og fremstår funktionel, tidssvarende og klar til ny ejer. Det samlede bygningsareal udgør 585 m², som er særdeles fornuftigt disponeret.
Bygningen indeholder en produktions-/lagerhal opdelt i to separate haller, begge med højt til loftet og hver sin store port, hvilket giver stor fleksibilitet i den daglige drift. Hertil kommer kontor, kantine/personalerum samt badeværelse, alle med gulvvarme, hvilket sikrer god komfort for medarbejdere. Endvidere findes et mindre lager på 1. sal, velegnet til opbevaring af lettere varer eller arkiv.
Indretningen fremgår tydeligt af plantegningen, hvor bl.a. kontor- og personalefaciliteter er samlet i én fløj, adskilt fra halarealerne, hvilket giver en praktisk og effektiv arbejdsdag
Ejendommen er beliggende på en 2.114 m² stor grund, der primært består af flisebelagt parkerings- og manøvreareal samt et grønt areal. Der er gode adgangsforhold for både medarbejdere, kunder og leverancer.
Beliggenheden er attraktiv i udkanten af Gudme med kort køreafstand til både Svendborg, Nyborg og Ringe, hvilket sikrer nem adgang til det fynske vejnet og motorvejsforbindelser.
Ejendommen er velegnet til mange formål, herunder: produktion, håndværk, industri, mekaniker- eller værkstedsdrift, lager og logistik etc.
En fleksibel erhvervsejendom med gode faciliteter og en attraktiv beliggenhed – ideel for virksomheden, der ønsker plads til både drift og vækst.