Overskuelig og velbesøgt campingplads på Vestfyn skal have ny ejer
Det er mere populært end nogensinde at campere, men har du nogensinde drømt om at have din egen campingplads? Hjemstavnsgårdens Camping nær Glamsbjerg er så enkel og overskuelig, som man næsten kan forestille sig. På en hektar jord er der 45 pladser med strøm, herudover er der placeret tre hytter, en legeplads samt en murstensbygning med reception og fællesfaciliteter for pladsens gæster. Herfra er det helt op til kommende ejer, hvad der skal ske, og om stedet skal fortsætte efter samme opskrift eller om der skal helt andre boller på suppen.
Pladsen har fungeret under samme koncept i de 25 år nuværende ejer har stået for driften. Det handler om fred og ro uden så mange dikkedarer. Her er ingen arrangementer, ingen fester, ingen musik og dans. Til gengæld er her fuldstændig fredfyldt og plads til at slappe af uden at blive forstyrret. Og det har et publikum! Antallet af besøgende har været støt stigende gennem årene, og særligt det hollandske folk er vilde med konceptet. Det appellerer primært til seniorsegmentet på 50+, som sætter pris på at kunne nyde en fredelig ferie ganske uforstyrret.
Sådan ser det ud i dag, men der er selvfølgelig masser af muligheder for at ændre konceptet, hvis I eksempelvis vil have flere hytter, pladser til telte og autocampere eller måske lave en restaurant/café/bar. Muligheder er der nok af.
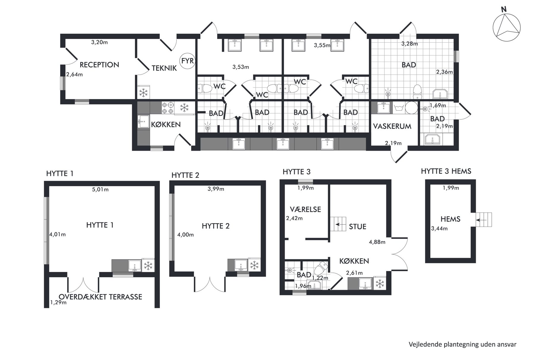
Alle tre hytter fremstår i nydelig og velholdt stand. De to mindste hytter trænger dog til at få nyt tag, men er derudover i fuldt anvendelig stand. De har begge tekøkken, fire sovepladser, sofa og spisebord samt en veranda. Den største af hytterne er den nyeste og blev bygget i 2016. Den har eget badeværelse, separat soverum samt en hems.
Pladsens fællesfaciliteter er ligeledes i pæn og brugbar stand. De ligger samlet i én bygning og består af to toilet- og baderum (M/K), hertil et stort og et mindre baderum, et vaskerum samt et køkken. Endelig er det også her receptionen og fyr- og teknikrummet er placeret.
Nærmeste større by er Glamsbjerg, som har indkøbsmuligheder, spisesteder og andre fornødenheder. Der er gode muligheder for cykel- og vandreture i området, og nærmeste badestrand er blot 10 kilometer væk. Pladsen har også en central beliggenhed, hvis man vil opleve andre attraktioner såsom Svanninge Bakker, Det Sydfynske Øhav, Hjemstavnsgårdens Museum, Egeskov Slot samt Odenses mange kulturtilbud.
Pladsen har fungeret under samme koncept i de 25 år nuværende ejer har stået for driften. Det handler om fred og ro uden så mange dikkedarer. Her er ingen arrangementer, ingen fester, ingen musik og dans. Til gengæld er her fuldstændig fredfyldt og plads til at slappe af uden at blive forstyrret. Og det har et publikum! Antallet af besøgende har været støt stigende gennem årene, og særligt det hollandske folk er vilde med konceptet. Det appellerer primært til seniorsegmentet på 50+, som sætter pris på at kunne nyde en fredelig ferie ganske uforstyrret.
Sådan ser det ud i dag, men der er selvfølgelig masser af muligheder for at ændre konceptet, hvis I eksempelvis vil have flere hytter, pladser til telte og autocampere eller måske lave en restaurant/café/bar. Muligheder er der nok af.
Alle tre hytter fremstår i nydelig og velholdt stand. De to mindste hytter trænger dog til at få nyt tag, men er derudover i fuldt anvendelig stand. De har begge tekøkken, fire sovepladser, sofa og spisebord samt en veranda. Den største af hytterne er den nyeste og blev bygget i 2016. Den har eget badeværelse, separat soverum samt en hems.
Pladsens fællesfaciliteter er ligeledes i pæn og brugbar stand. De ligger samlet i én bygning og består af to toilet- og baderum (M/K), hertil et stort og et mindre baderum, et vaskerum samt et køkken. Endelig er det også her receptionen og fyr- og teknikrummet er placeret.
Nærmeste større by er Glamsbjerg, som har indkøbsmuligheder, spisesteder og andre fornødenheder. Der er gode muligheder for cykel- og vandreture i området, og nærmeste badestrand er blot 10 kilometer væk. Pladsen har også en central beliggenhed, hvis man vil opleve andre attraktioner såsom Svanninge Bakker, Det Sydfynske Øhav, Hjemstavnsgårdens Museum, Egeskov Slot samt Odenses mange kulturtilbud.